Направи си сам окабеляване на осветлението във ваната
Осветлението във ваната е от голямо значение, особено за парната баня, тъй като най-често там няма естествена светлина. За да направите всичко правилно, трябва да следвате редица препоръки, тъй като условията на работа са много различни от стандартните и всякакви нарушения могат да доведат до късо съединение или дори пожар. Според статистиката пожарите в баните най-често възникват именно поради некачествено или неправилно положено окабеляване.

Изисквания за сигурност
Всички стандарти за бани и сауни са посочени в GOST 50571.12-96, SNiP II-L.13-62, както и в седмото издание на PUE (глава 7). За по-лесно разбиране основните изисквания са събрани в този раздел:
- Окабеляването може да се извърши както затворен, така и отворен метод.Първият е подходящ за дървени сгради и за случаи, когато повърхността вече е подрязана. За полагане се използва кабелен канал или PVC гофриране, забранено е използването на метални тръби и други елементи, които провеждат ток.
- Най-добре е да използвате кабел, който може да издържи нагряване до поне 170 градуса. Подходящи медни опции RKGM, PRKS, PVKV, PRKA. Можете също да използвате едноядрен или многоядрен PMTK, проектиран да работи при температури до 200 градуса. От чуждестранни аналози е подходящ OLFLEX HEAT 205, предназначен за използване в сауни. Що се отнася до други помещения във ваната, където температурите не са толкова високи, VVGng-LS е подходящ там.Един от вариантите на кабела, използван за полагане в сауни и парни бани.
- Не използвайте кабел с метални оплетени елементи, тъй като поради влажност и температура те бързо ще ръждясват. При отворен метод на полагане горимата повърхност трябва да бъде най-малко 10 mm. Не забравяйте да използвате незапалимо уплътнение, което стърчи от двете страни със сантиметър.
- Строго е забранено да инсталирате контакти, ключове и разклонителни кутии в парната баня. Те трябва да бъдат изнесени от стаята и разположени на най-удобното място, за да се улесни полагането на кабела.
Всички метални елементи (корпус на пещта, лампа и др.) трябва да бъдат заземени, а сградата да бъде оборудвана с мълниезащита. - В разпределителното табло е задължително да се монтират прекъсвачи за защита от късо съединение и RCD. RCD трябва да бъдат избрани така, че токът на изключване да не надвишава 30 mA и за предпочитане 10 mA.
- Не е възможно да прекарате кабела над фурната, по-добре е да изберете място на разстояние от него.Можете да свържете проводници с помощта на подложки, запояване, специални ръкави или заваряване. Забранено е използването на усуквания, тъй като в трудни условия такава връзка не осигурява необходимата надеждност.
- При избора на мощността на оборудването се вземат предвид стандартите за осветление за различни помещения във ваната. В парната баня, съблекалнята, стаята за релакс и душ кабината минималното ниво е 75 лукса, ако има басейн, тогава има норма от 100 лукса и повече.
- Ако естествено осветление в стаите не, струва си да се оборудва аварийна светлина, което ще ви позволи безопасно да напуснете помещенията при прекъсване на електрозахранването по главната линия.
- Когато прекарвате кабела през стената, трябва да поставите парче метална тръба. Това е необходимо, за да се предотврати повреда на кабела, когато стената се деформира.
- Когато избирате осветителни тела и контакти за всички стаи, вземете предвид условията на използване. За места с висока влажност изберете модели с клас на защита IP65 или по-висока. Стандартното оборудване може да бъде поставено в съблекални или коридори.Запечатана топлоустойчива LED лампа за помещения с температури над 100 градуса.
Между другото! За да не полагате окабеляване в парната баня, можете да го проведете в съседни помещения и да направите дупки в стената за свързване на местата на лампите. В този случай не е нужно да защитавате кабела, работата ще бъде значително опростена.
Какво напрежение е най-добро за мокри помещения
Светлината в парната трябва да бъде не само функционална, но и безопасна. Необходимо е да се обърне внимание на избора на подходящо напрежение, има няколко опции:
- За основното захранване на всички помещения най-често се използва еднофазно напрежение. за 220 V.Това е най-често срещаното решение, което е подходящо и за осветление в парна баня, при спазване на няколко условия: защита с помощта на диференцирани автомати и RCD, заземяване с помощта на системата TN-C-S. Задължително е и наличието на EMS (система за изравняване на потенциала).
- Ако се използва мощно електрическо оборудване с висока консумация на енергия, тогава е подходящ трифазен вход. Тази опция се използва за захранване на котли, подово отопление, помпи и др. И изискванията за осветление в парната баня са същите като за еднофазна.
- За осветление се използва монофазната намалена версия. Ако заведете светлината във ваната, работеща на напрежение от 12 или 36 волта, тогава нивото на безопасност за човек ще бъде многократно по-високо. Това е най-предпочитаното решение, за което е необходим понижаващ трансформатор. Трябва да се монтира в щит или в помещение с нормално ниво на влажност, не може да се фиксира в душове и парни бани. Ако приложите тази опция не само в мокри помещения, но и в стаята за почивка, коридора и съблекалнята, можете да спестите от електричество.

Освен осветление от линия с ниско напрежение може да работи и друго оборудване. Ако е необходимо, можете да инсталирате и гнезда.
Какви лампи са подходящи за парната баня
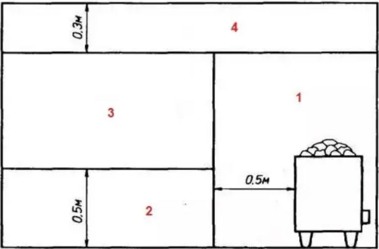
На първо място, трябва да запомните едно просто правило: лампите в парната баня не могат да се поставят на тавана. Те винаги са фиксирани към стената на най-малко 30 см от тавана. Освен това те трябва да бъдат разположени в третата зона, във втората можете да поставите само подсветката, най-лесният начин за навигация е според схемата.
Има няколко прости насоки, които трябва да имате предвид:
- Осветяването на втората зона може да се извърши с помощта на лампи с топлоустойчивост 50 градуса. Но е по-добре да поставите опции, които могат да издържат на високи температури, за да се премахнат всякакви проблеми.
- В третата зона се поставя основното осветление, трябва да се избират само лампи с ниво на защита от влага най-малко IP54. В същото време таванът и тялото трябва нормално да издържат на нагряване до 125 градуса.
- При избора е най-добре да се даде предпочитание на модели с керамична основа, те понасят топлината много по-добре. Пластмасовите основи не са най-доброто решение за парна баня с промени в температурата и влажността.Таванните лампи на керамична основа са най-подходящи за парна баня или сауна.
- Плафонът може да бъде изработен от матирано стъкло или топлоустойчив полимерен материал. Обикновено за херметичност между тавана и тялото се поставя силиконово уплътнение.
От видеото ще научите дали си струва да използвате LED лампи във ваната.
Що се отнася до източниците на светлина, може да има няколко опции. Всички те се показаха добре в работата си, така че трябва да изберете въз основа на характеристиките на парната баня и бюджета:
- Лампи с нажежаема жичка е традиционната версия, която все още се използва днес. Те консумират много електроенергия, не издържат много дълго, но са евтини. Обикновено крушки с мощност над 60 W не могат да се поставят в таванни лампи, така че светлината не е много ярка, сянката е жълта, близка до естествената.
- халогенни опциите работят добре в парната баня, тъй като самите те се нагряват до високи температури, така че горещият въздух не им вреди. Те се различават по качеството на светлината и могат да работят както на стандартно, така и на ниско напрежение, което е много важно.Експлоатационният живот не е много дълъг, за максимална ефективност трябва да се закупят топлоустойчиви лампи.
- Флуоресцентни лампите ви позволяват да оборудвате удобно осветление в сауна или парна баня, тъй като имат различни опции за яркост и светят с минимална честота на трептене. Те се предлагат в различни форми и размери, основното е да закупите модел с висока степен на защита от влага и топлина.
- LED лампите не са били използвани преди това в парни бани, тъй като не понасят добре екстремни условия. Но сега има модели, които са специално проектирани за високи температури, трябва само да изберете опции за сауни, стандартното оборудване не може да се използва. Диодите консумират малко електричество, дават мека разсеяна светлина и работят при ниско напрежение.
- Оптичните осветителни системи се считат за едни от най-добрите за парни бани. Състоят се от проектор и дълги светлопропускащи елементи, които са поставени на правилните места и дават комфортна светлина. Опцията е по-трудна за инсталиране и струва много повече от другите решения, но издържа на нагряване до 200 градуса и осигурява максимално ниво на сигурност.

Преглед на цените на популярните лампи за баня.
Опции за поставяне на лампи във ваната
Всичко зависи от помещението, тъй като има няколко вида с различни условия на работа. Трябва да се отбележи, че навсякъде можете да инсталирате лампи с максимално ниво на защита. Основните характеристики са:
- В парната баня е най-добре да поставите лампи на стената или в ъглите. Когато избирате място, помислете за безопасността, оборудването не трябва да пречи на хората.Ако стаята е малка, има смисъл да поставите източника на светлина в дървена рамка, така че никой определено да не го докосва. Подсветката във ваната може да бъде разположена в долната част на стената или под рафтовете, ако не са плътни и пропускат светлина.Източниците на светлина в парната баня могат да бъдат разположени зад облегалката на седалката или под нея.
- За душове изберете осветителни тела с висока степен на защита срещу влага, те трябва да издържат дори на пряк удар от водна струя. Но е по-добре да ги поставите така, че по-малко пръски да падат върху повърхността и в същото време осветлението да е нормално в кабините и в други части на стаята. Разрешено е монтирането на оборудването както на стените, така и на тавана.
- В съблекалнята хората се събличат, има и огледала, контакти за свързване на електрически уреди. Няма ограничения за оборудването, можете да поставите лампи по стените, да използвате прожектори или да окачите полилей или светлинен панел в средата.
- За стая за почивка осветлението се избира въз основа на комфорт и дизайн. Може да бъде всеки модел - от класически полилеи към LED лентата. Струва си само да запомните, че е по-добре да не използвате флуоресцентни лампи за неотопляеми помещения, тъй като те не работят добре при температури под 5 градуса.
В коридора и пред входа е по-добре да поставите лампи, предназначени за открито. За да може светлината на улицата да не работи дълго време и да се включва само когато има хора в двора, най-лесният начин е да инсталирате сензор за движение.
Етапи на монтаж на електрическо осветление
Необходимо е да се направи не само светлината в парната баня, но и да се създаде цялостна и безопасна електрическа система във ваната. Следователно, за простота, работата трябва да бъде разделена на етапи и да се извърши на свой ред.
Обучение
Още преди началото на инсталацията трябва да се извършат редица подготвителни работи. Техният списък и сложност могат да варират. Но най-често процесът се състои от следните действия:
- Довеждане на захранващия кабел до банята. Обикновено се използва въздушна линия, кабелът е монтиран на специална скоба на стената, височината на местоположението трябва да изключва случаен контакт между хора и животни. Вторият вариант е подземно полагане, той е порядък по-безопасен, но и по-труден. Ще трябва да изкопаете изкоп, да поставите кабела в HDPE тръбата, но можете да го внесете директно в стаята под местоположението на щита.Най-често, за да свържете електропровода, трябва да се обадите на електротехник от захранващата организация.Схема за прокарване на кабела през външната стена.
- Изготвяне на проект. Колкото по-подробна и прецизна е диаграмата, толкова по-добре. Необходимо е да се посочат всички необходими линии, това може да бъде осветление чрез понижаващ трансформатор, контакти, бойлер, подово отопление, електрически бойлер и др. Необходимо е също така да се осигури заземяване. За всеки клон трябва да инсталирате автоматична машина и RCD, за да гарантирате безопасността.
- Изчисляване на необходимите компоненти и материали. На първо място, определете кой кабел и колко ви трябва, всичко зависи от мощността на оборудването. Ако има котел, струва си да прочетете ръководството, то показва оптималното кабелна секция, който трябва да се използва за свързването му. Най-лесният начин е да направите списък с всичко, от което се нуждаете. Не забравяйте за разклонителните кутии и гофрирането или кабелния канал - зависи от метода на полагане.
- Вземете всичко необходимо за работа.По-добре е да вземете кабел и други стоки, измерени с текущи метри с марж, за да изключите ситуация, при която липсват няколко десетки сантиметра. Изберете висококачествени компоненти, не пестете от това. Подгответе необходимите инструменти, всичко зависи от спецификата на инсталацията.
Необходимо е предварително да се изготви проект в предписаната форма и да се съгласува с надзорната организация.
Полагане и свързване на кабели
Изберете местоположението на електрическото табло, най-добре е да го поставите в сухо помещение близо до входа. Размерът се избира в зависимост от броя на машините и RCD, които трябва да бъдат инсталирани. Понякога има и понижаващ трансформатор. Най-добре е шкафът да бъде заключен, за да се предпази от деца. Работата се извършва, както следва:
- Щитът трябва да бъде фиксиран на височина 140-180 см от нивото на пода. Захранващият кабел се навива през отделна машина, която може да се използва за изключване на цялата консумация на енергия, ако е необходимо. След това всички машини и RCD са инсталирани, те са лесни за монтиране на специална шина. Можете да залепите стикери, указващи целта на една или друга опция, за да не объркате.Размерът на разпределителното табло зависи от броя на прекъсвачите и RCD, които трябва да бъдат инсталирани.
- Направете маркировки по стените, за да видите как ще върви кабелът. Също така маркирайте местоположението на ключове, тела и разклонителни кутии.
- Ако се използва скрита версия на уплътнението, тогава стробовете се правят с помощта на перфоратор и мелница с диск за бетон. Правят се изрези и за контакти, ключове и разклонителни кутии, за това е най-лесно да използвате специални корони с подходящ диаметър. При стробове кабелът се полага с PVC гофри.Пример за полагане в стробоскоп.
- При отворен метод на полагане на повърхността се фиксира гофриран или кабелен канал при спазване на всички условия. Кутиите, ключовете и контактите могат да бъдат както надземни, така и вградени.
- Правете кабелни връзки само в разклонителни кутии. Най-добре е да използвате устойчиви на влага капачки или клеми за това. Това е най-простото и надеждно решение, което ви позволява да свързвате проводници, без дори да имате много опит.Специални запечатани капачки за свързване на проводници - идеални за мокри помещения.
- В точките на свързване всички консуматори на енергия оставят краища с достатъчна дължина, така че да могат да бъдат свързани без дърпане на кабела.
Не забравяйте за заземяването, към чиято верига са свързани електрическият панел и всички елементи, които го изискват.
Монтаж и проверка на арматурата
След като полагате проводниците, можете да продължите към окончателната работа. Тук всичко е доста просто:
- Свържете лампи, контакти и ключове с помощта на блокове или запечатани капачки, ако са в помещение с висока влажност.Пример за правилно свързване на проводници в разклонителна кутия.
- Закрепете оборудването към стените или тавана по подходящ начин. Основното нещо е да фиксирате здраво елементите, за да предотвратите падането им.
- Свържете захранването и проверете работата на всички светлини и контакти.Проверка на гнездото с индикаторна отвертка.
- Обадете се на представител на фирмата за електрически тестове, за да проверите всички показания и да издадете разрешение за употреба. Това е единственият начин да сте сигурни, че всичко е направено правилно.

Нисковолтовото осветление може да се захранва както от трансформатор, така и от батерия, която ще захранва лампите по време на прекъсване на тока.
В края на видеото лайфхак: Как можете да спестите от закупуването на лампа във ваната.
Полагането на окабеляване във ваната не е трудно, но трябва да се спазват редица ограничения, тъй като електрическото оборудване работи в трудни условия. Важно е да следвате технологията, да изберете надеждни тела и да сглобите системата по такъв начин, че да я предпазите от влага и повреди.













