Как правилно да позиционирате лампите на опънатия таван
Правилното подреждане на тела на опънатия таван не само ще направи стаята уютна, но и ще създаде удобни условия за почивка и работа. Благодарение на добре подбрана схема можете да осигурите добро покритие на желаните зони или да подчертаете отделни елементи от интериора. За да изберете оптималното решение, трябва да вземете предвид няколко препоръки.

Препоръки за поставяне на осветителни тела
Няма наредба, която да регламентира правилата за поставяне на прожектори в опънатия таван. От една страна, това не ограничава вашите предпочитания, от друга страна, можете да направите редица грешки и резултатът няма да е най-добрият. Общи съвети - помислете за предназначението на стаята. Ако това е място за почивка, приглушената светлина е по-добра, ако е работна зона, имате нужда от висококачествено осветление, което е близко до естественото.
Правила за поставяне
Ако вземете предвид прости препоръки, тогава изборът на правилното осветление е лесен. Основното нещо е да не бързате и да обмислите добре всяко малко нещо, за да не пропуснете нито един важен аспект. Запомнете следното:
- Когато поставяте осветителни тела симетрично, си струва внимателно да проверите местоположението им, така че да няма измествания. Ако оборудването е криво, външният вид на тавана и осветлението ще бъдат нарушени.Спазвайте минималното разстояние.
- За всяка зона е по-добре да поставите отделен ключ. Ако има много спот елементи, по-добре е да помислите как да ги разделите, така че да се включи само частта, която е необходима в даден момент. Това не само ще намали консумацията на електроенергия, но и ще ви позволи да осветите само една зона.
- Ако е включен трансформатор, поставете го така, че да е лесно достъпен. Най-често този елемент изгаря, така че трябва да помислите предварително къде да го инсталирате, така че ако е необходимо, да го смените без проблеми.
- Вдигни размер на тяло под характеристиките на тавана. Трябва да знаете точно разстоянието от платното до тавана, за да изберете правилния модел и той да не опира на тавана. Минималното разстояние трябва да бъде 5 см.
- Можете да подредите оборудване в линии, полукръг, змия и т.н. Няма ограничения, но трябва да изберете опция предварително и да приложите етикети, за да сте сигурни, че резултатът изглежда привлекателен.
- За работната зона направете ярко осветление, за зоната за отдих, заглушено. Помислете за наличието на други източници на светлина (полилеи, аплици), тъй като те също дават ефект.

Съвет! Ако трябва да изместите акцентите на осветлението или да регулирате посоката на светлината, по-добре е да поставите ротационни светлини.
Вземете предвид стандартите за осветление за различните стаи. Те са инсталирани в съответствие със санитарните стандарти на квадратен метър. Първият индикатор в списъка е за лампи с нажежаема жичка, вторият е за луминесцентен опции, третият - за светодиоди:
- В коридора - 10, 6 и 2,5 вата.
- За банята - 20-22, 14 и от 5.2 до 5.4.
- В детската стая 60, 36, 6.8.
- За кухнята 26, 15-16 и 6.8.
- Спалня - от 12 до 15, от 8 до 10, от 2,7 до 3,4.
- Зала или хол - 20-22, от 13 до 14, 5.2-5.4.
Ако спазвате правилата, няма да е трудно да определите броя на лампите, като добавите общата им мощност и разделите на площта на стаята.

Препоръки за избор на осветителни тела
Като се имат предвид няколко прости съвета, изборът на лампа е лесен. Ако знаете разположението на точките и подреждането на мебелите в стаята, няма да има проблеми с изчисляването на мощността. Но има редица други критерии, които не бива да се забравят:
- Степен на защита от влага. За баня, баня или кухня е по-добре да изберете модели с повишена защита от влага, които са маркирани IP44.
- Видът на използваната крушка. По-добре е да не купувате опции с традиционна лампа с нажежаема жичка, тъй като те се нагряват много, което е нежелателно за опънат таван. Флуоресцентните и халогенните също не са най-подходящите. Идеалното решение са светодиодите, те консумират малко енергия и не се нагряват много по време на работа.
- Външен вид. Прожекторът трябва да се комбинира със светлината на тавана и да се вписва в интериора.
- Ако трябва да изместите фокуса на осветлението, по-добре е да изберете въртящи се опции.
Съвет! Не купувайте най-евтините модели, тяхното качество обикновено оставя много да се желае, а експлоатационният живот е кратък.

В избор на тела вземете предвид вида на касетата и простотата смяна на лампатаколкото по-лесно е да го направите, толкова по-добре. Опциите със светодиоди се предлагат без лампи, в този случай, ако не успеят, ще трябва да закупите нови или да разглобите и запоявате диодите, което не е много просто.
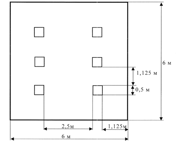
Разстояние между осветителните тела, основни норми
За да бъде стаята добре осветена, а таванът да изглежда красив, трябва да спазвате няколко правила за разположението на лампите. Тук всичко е просто:
- От стената до ръба на прожектора трябва да има поне 20 см. Ако го поставите по-близо, тогава основната част от светлината ще отиде до стената, което може да бъде полезно само ако трябва да подчертаете картина, скулптура или нещо друго. По-добре е да се отдръпнете от стената с 25-30 см, но в малки стаи използвайте минималната скорост.
- Разстоянието между прожекторите трябва да бъде не по-малко от 30 см. Това е минималната допустима стойност, която трябва да се измерва от ръба на корпуса, а не от центъра. Но е по-добре да поставите оборудването на 40-50 см, за да можете да осигурите добра светлина и в същото време таванът да изглежда спретнат. Но не си струва да поставяте прожектори на разстояние повече от метър.
- Ако има шевове по опънатия таван, оборудването не трябва да се поставя на по-близо от 20 см от тях. От това надеждността на мрежата се намалява и рискът от скъсване се увеличава значително. Ако е възможно, отстъпете от шевовете с 25-30 см, планирайте позицията на лампите, така че да няма празно пространство в близост до фугата.
Ако на опаковката или в инструкциите за лампата има норми за монтажа й с разстояния, по-големи от посочените, те трябва да се спазват.За да определите грубо местоположението, си струва да направите проста диаграма с план на всички лампи в стаята.

Популярни оформления за различни стаи
Разположението на прожекторите зависи от помещението, в което са инсталирани, неговата площ и естеството на използване. Всяка стая има свои собствени правила, които трябва да се спазват. По-долу са дадени няколко варианта за поставяне както без полилей, така и с него.

Коридор и коридор
Най-често стаята има удължена форма, малка ширина и в нея няма естествена светлина. Изключение правят коридорите и коридорите в частни домове. Тук е важно да запомните следното:
- С ширина повече от един и половина метра е най-добре да поставите прожектори по периметъра. Това е достатъчно за нормалното осветление на стаята. В тесни коридори си струва да поставите оборудването в един ред в средата.
- За да добавите светлина и обем, е по-добре да използвате леки гланцови тавани и малки вградени светлини.
- Можете да окачите огледала по стените и да поставите аплици около тях, за да добавите светлина.
- Изберете зона близо до огледалото, ако има такова.
В този случай регулируемите опции са много подходящи. След монтажа можете да настроите светлината така, че стаята да е осветена равномерно по цялата площ.

Кухня
Всичко зависи от размера и формата на стаята. Колкото по-голяма е площта, толкова по-широки са възможностите за декорация. Има обаче някои общи насоки, които трябва да имате предвид:
- За малка кухня можете да направите прожекторите основният източник на светлина. В този случай те трябва да бъдат разпределени по цялата повърхност.
- В средни и големи стаи обикновено се комбинират вградени опции и полилей в средата.
- Точковото осветление е много добро за подчертаване на зоната за хранене. Там можете да поставите няколко лампи и да поставите върху тях отделен ключ за превключване.
- Работната зона трябва да бъде осветена по този начин само ако в кухнята няма висящи шкафове.
- По-добре е да използвате модели с повишена защита срещу влага.

Забележка! Прибиращите се регулируеми опции са добре пригодени, с тяхна помощ е лесно да се освети точно необходимата зона.
Всекидневна и антре
В тези стаи разположението на лампите на тавана може да бъде всичко. Всичко зависи от размера на стаята, подредбата на мебелите и нюансите на използването на определена зона. Характеристиките са:
- Обикновено един или два полилея заемат централно място. Като допълнителен източник на светлина се използват вградени елементи, които имат както практическа, така и декоративна стойност.
- Ако таванът е направен под формата на фигури или има ниши и первази, позицията на прожекторите се избира според тяхната конфигурация. В този случай трябва да запомните разстоянието, което трябва да се спазва.
- Можете да изберете отделна зона, ако се използва за игри или ръкоделие. В този случай е по-добре да поставите отделен бутон за превключване на група тела.
- За декоративна употреба, подчертаване на някои елементи или осветяващи картини, можете да поставите оборудването близо до стената или дори да го поставите в ниши.

Тук можете да реализирате всякакви проекти, особено ако площта е голяма. Но трябва да помним, че колкото повече лампи са в тавана, толкова по-трудно е електрическа схема и повече разходи за монтаж.
Спалня
В тази стая най-често те почиват, така че спокойна, приглушена светлина, която е равномерно разпределена по цялата площ, е по-добра. Но има и някои характеристики:
- Можете да осветите зоната за четене, като използвате вградени светлини вместо традиционни аплици.
- Пространството около гардероба трябва да бъде специално разпределено. Тук човек се облича и оценява външния вид.
- Ако в спалнята има тоалетка или работно бюро, тази зона трябва да бъде осветена отделно, за да се включи ярка светлина, ако е необходимо.
В тази стая можете да вградите тела както в опънатия таван, така и в килера, ако е голям. Ако площта на стаята е малка, реалистично е да се направи без полилей.

На децата
В тази стая се съсредоточете върху качеството на осветлението. Трябва да е близо до естествената дневна светлина, за да не натоварва зрението на детето. Правилата са:
- Поставете прожекторите като допълнителен елемент. Най-добре е да използвате LED модели.
- Маркирайте зоната за игра и работния плот, така че да има перфектно осветление.
- Можете да инсталирате лентово осветление около периметъра, така че през нощта да има заглушена светлина, която замества нощната светлина.
Използвайте безопасно оборудване. Ако е възможно, монтирайте лампи с поне минимална възможност за регулиране, за да настроите добре светлината.

Тематично видео
Баня и баня
Най-често това са малки помещения, така че могат да бъдат напълно осветени с вградени светлини. Основните правила са:
- Ако банята е мъничка, достатъчно е да поставите 2 елемента в средата, за да осветите равномерно пространството.
- За банята изберете местоположението на източниците на светлина, така че пространството пред огледалото да е добре осветено.
- Използвайте само влагоустойчиви модели.
- Изберете схема според площта и формата на стаята. Най-често лампите се поставят по стените, но можете да добавите няколко в средата.

Не е трудно да изберете правилното местоположение на прожекторите в опънатия таван, ако използвате препоръките от прегледа и вземете предвид характеристиките на стаята. Струва си да се спазват стандартите за разстояние и да се вземе предвид наличието на друго осветително оборудване.
